HAWA AG

Projekt für den Neubau des Hauptsitzes des renommierten Produzenten von Schiebebeschlägen.

Hawa AG - Exterior

Ein neuer Hauptsitz

Die HAWA AG veranstaltete 2009 einen Wettbewerb mit 6 eingeladenen Teams, aus dem wir als Siegerteam hervorgingen.
Die frühe Auseinandersetzung mit den logistischen Anforderungen des Betriebes und deren konsequente Umsetzung haben nicht zuletzt zum Wettbewerbserfolg geführt.
In der Folge wurden wir von der HAWA mit der Überarbeitung des Projektes beauftragt.
Das Projekt fand leider während der Wirtschaftskrise 2009 ein jähes Ende.

Hawa AG - Situationsplan
Hawa AG - Querschnitt
Hawa AG - Interior
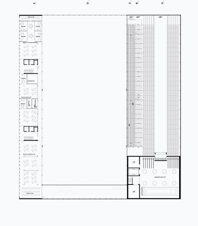
Hawa AG - Grundriss 00
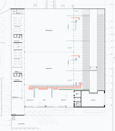
Hawa AG - Grundriss 01
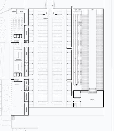
Hawa AG - Grundriss 02
Hawa AG - Grundriss 03
INFO
Phasen: Wettbewerb 1.Rang
Vorprojekt / Bauprojekt
Ausführungsplanung (in Kooperation mit Kuhn Fischer Partner)
Bauherrschaft: HAWA AG
Ort: Mettmenstetten
Jahr: 2009